【建築条件付き土地】サン・タウン深野北1丁目

1,380万円

大阪府大東市深野北1丁目

片町線「野崎」駅徒歩13分

片町線「四条畷」駅徒歩22分

片町線「住道」駅徒歩28分

価格
1,380万円
土地面積(坪数)
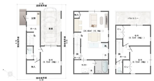
89.98㎡(27.21坪)
所在地
大阪府大東市深野北1丁目
築年
-(-)
駐車
-
交通

片町線野崎」駅 徒歩13分

片町線四条畷」駅 徒歩22分

片町線住道」駅 徒歩28分

【建築条件付き土地】サン・タウン深野北1丁目の基本情報

物件名
【建築条件付き土地】サン・タウン深野北1丁目
価格
1,380万円
土地面積
89.98㎡
築年月
-(-)
総区画数
1区画
所在地
大阪府大東市深野北1丁目
交通

片町線野崎」駅 徒歩13分

片町線四条畷」駅 徒歩22分

片町線住道」駅 徒歩28分

【建築条件付き土地】サン・タウン深野北1丁目の詳細情報

設備条件
  • 閑静な住宅地
  • 駐輪場
  • バイク置場あり
  • 耐震構造
設備(その他)
    ■建築条件付の土地です♪♪
駐車場/月額
-/-
土地権利
所有権
国土法届出
不要
用途地域
第二種中高層住居専用
区画数
1区画 / 1戸
管理形態
-
管理員の勤務形態
-
管理会社
-
取引態様
専属専任媒介
引渡し
相談
開発許可番号
-
備考
弊社40年の実績と自由設計により施主様の理想の住まいを実現いたします。

【建築条件付き土地】サン・タウン深野北1丁目のコメント(おすすめポイント)

徒歩9分の場所に大東市立深野小学校があります。建築中に施工不良がないかチェックでき安心感を得ることができるのもメリットの1つである建築条件付きです。売地をお探しの方におすすめの土地です。土地面積は89.98㎡(公簿)で一押しです。片町線野崎周辺で土地をお探しなら、0120-353-017までお問い合わせください。株式会社三笠工務店が土地探しのお手伝いを致します。

【建築条件付き土地】サン・タウン深野北1丁目で募集中の物件

  1. 27.21坪 (89.98㎡)

    1,380万円(50.72万円/坪)

周辺施設

  • 深野中学校の画像

    中学校

    深野中学校

    289m(4分)

  • デイリーヤマザキ 大東深野店の画像

    コンビニエンスストア

    デイリーヤマザキ 大東深野店

    310m(4分)

  •  三箇第三公園の画像

    公園

    三箇第三公園

    534m(7分)

  • 松屋 野崎店(松のや併設)の画像

    その他

    松屋 野崎店(松のや併設)

    577m(8分)

  • 津の辺保育園の画像

    保育園

    津の辺保育園

    601m(8分)

  • 大東市立深野小学校の画像

    小学校

    大東市立深野小学校

    712m(9分)

  • グルメシティ 野崎店の画像

    スーパー

    グルメシティ 野崎店

    845m(11分)

  • 三箇第二公園の画像

    公園

    三箇第二公園

    875m(11分)

  • 認定こども園上三箇保育園の画像

    保育園

    認定こども園上三箇保育園

    899m(12分)

  • 深北緑地の画像

    公園

    深北緑地

    1066m(14分)

  • しまむら三箇店の画像

    ショッピングセンター

    しまむら三箇店

    1106m(14分)

  • ファミリーマート 大東南楠の里店の画像

    コンビニエンスストア

    ファミリーマート 大東南楠の里店

    1131m(15分)

  • TOP WORLD(トップワールド) 野崎店の画像

    スーパー

    TOP WORLD(トップワールド) 野崎店

    1152m(15分)

  • 河北病院の画像

    総合病院

    河北病院

    1204m(16分)

近隣の物件

  1. 大東市明美の里町

    - (81.57㎡)

    1,980万円

  2. 大東市深野2丁目

    - (100.73㎡)

    1,680万円

  3. 大東市北条6丁目

    - (196.00㎡)

    1,850万円

  4. 大東市南津の辺町

    - (105.00㎡)

    2,041万円

【建築条件付き土地】サン・タウン深野北1丁目

お気軽にお問い合わせください

無料お問い合わせ

株式会社三笠工務店

0120-353-017

10:00~19:00

(休:水曜日)