【建築条件付き土地】グラッド・タウン三箇5丁目

880万円

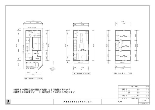
大阪府大東市三箇5丁目

片町線「住道」駅徒歩30分

片町線「野崎」駅徒歩20分

片町線「四条畷」駅徒歩27分

価格
880万円
土地面積(坪数)
54.88㎡(16.6坪)
所在地
大阪府大東市三箇5丁目
築年
-(-)
駐車
-
交通

片町線住道」駅 徒歩30分

片町線野崎」駅 徒歩20分

片町線四条畷」駅 徒歩27分

【建築条件付き土地】グラッド・タウン三箇5丁目の基本情報

物件名
【建築条件付き土地】グラッド・タウン三箇5丁目
価格
880万円
土地面積
54.88㎡
築年月
-(-)
総区画数
1区画
所在地
大阪府大東市三箇5丁目
交通

片町線住道」駅 徒歩30分

片町線野崎」駅 徒歩20分

片町線四条畷」駅 徒歩27分

【建築条件付き土地】グラッド・タウン三箇5丁目の詳細情報

設備条件
  • 閑静な住宅地
  • 駐輪場
  • バイク置場あり
  • 耐震構造
設備(その他)
    ■建築条件付の土地です♪♪
駐車場/月額
-/-
土地権利
所有権
国土法届出
不要
用途地域
第一種中高層住居専用
区画数
1区画 / 1戸
管理形態
-
管理員の勤務形態
-
管理会社
-
取引態様
売主
引渡し
相談
備考
弊社40年の実績と自由設計により施主様の理想の住まいを実現いたします。

【建築条件付き土地】グラッド・タウン三箇5丁目のコメント(おすすめポイント)

【建築条件付き土地】グラッド・タウン三箇5丁目:片町線住道駅にも近くて便利。土地面積は54.88㎡(公簿)でイチオシ。土地購入の際、売地のことなら当社にご相談ください。道路が南側に面しているので、とてもニーズが高いです。大東市エリアの不動産情報は、株式会社三笠工務店にお任せください。お電話でのお問い合わせは、0120-353-017までよろしくお願いします。

【建築条件付き土地】グラッド・タウン三箇5丁目で募集中の物件

  1. 16.60坪 (54.88㎡)

    880万円(53.01万円/坪)

周辺施設

  • 三箇第二公園の画像

    公園

    三箇第二公園

    225m(3分)

  •  江ノ口保育園の画像

    幼稚園

    江ノ口保育園

    489m(7分)

  • ファミリーマート門真江端東店の画像

    コンビニエンスストア

    ファミリーマート門真江端東店

    540m(7分)

  • 吉野歯科医院の画像

    歯科

    吉野歯科医院

    659m(9分)

  • ディオ 大東店の画像

    スーパー

    ディオ 大東店

    672m(9分)

  • ドラッグストアーアカカベ門真江端店の画像

    ドラッグストア

    ドラッグストアーアカカベ門真江端店

    885m(12分)

  • 大東市立 三箇小学校の画像

    小学校

    大東市立 三箇小学校

    919m(12分)

  • ふくろうファミリークリニックの画像

    小児科

    ふくろうファミリークリニック

    930m(12分)

  • キリン堂門真東店の画像

    ドラッグストア

    キリン堂門真東店

    993m(13分)

  • デイリーヤマザキ 大東深野店の画像

    コンビニエンスストア

    デイリーヤマザキ 大東深野店

    1040m(13分)

  • 深野中学校の画像

    中学校

    深野中学校

    1049m(14分)

  • 大阪シティ信用金庫 大東北支店の画像

    信用金庫

    大阪シティ信用金庫 大東北支店

    1109m(14分)

  • ホワイト急便ドライブスルー岸和田店の画像

    クリーニング

    ホワイト急便ドライブスルー岸和田店

    1147m(15分)

  • ホームセンターコーナン 大東御領店の画像

    ホームセンター

    ホームセンターコーナン 大東御領店

    1259m(16分)

  • 河北病院の画像

    総合病院

    河北病院

    1391m(18分)

  • 野崎駅の画像

    野崎駅

    1750m(22分)

  • 大東市役所の画像

    市役所・区役所

    大東市役所

    2013m(26分)

  • 京阪百貨店 すみのどう店の画像

    デパート

    京阪百貨店 すみのどう店

    2095m(27分)

  • 四条畷駅の画像

    四条畷駅

    2309m(29分)

  • 住道駅の画像

    住道駅

    2490m(32分)

近隣の物件

  1. 大東市深野北1丁目

    - (89.98㎡)

    1,380万円

  2. 大東市野崎1丁目

    - (70.50㎡)

    1,280万円

  3. 大東市南津の辺町

    - (105.00㎡)

    2,041万円

  4. 大東市津の辺町

    - (127.81㎡)

    2,880万円

【建築条件付き土地】グラッド・タウン三箇5丁目

お気軽にお問い合わせください

無料お問い合わせ

株式会社三笠工務店

0120-353-017

10:00~19:00

(休:水曜日)